OK! So hear we go!

Drawing:

Fancy 3D Rendering


Inside Dimensions

Now! Let us discuss the few minor issues I have addressed with the factory this morning and HOPEFULLY get a reply late tonight.
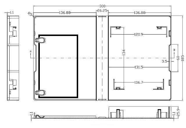
1.) Booklet clips: The clip in the drawing are 150MM apart. The smaller NES booklets will not be able to reach the second clip. (They are around 133MM in length) I have requested that they move the top clip lower in the case as seen below.

2.) Game cart holding clips: The clips will be 17.6MM in height. They will be able to nicely hold the thickest NES carts out there. And they will keep standard carts secure. And the clips will not scratch carts like Zelda because they a a few MM wiggle room inside the case. I wanted to get ya'll opinion on this. I personally like the idea of the NES standard carts having a little bit of wiggle room... but what do you think?
Thick NES cart:

Standard NES cart:

To be exact, the wiggle room here is 0.9MM.

3.) Last but not least, it appears that the cases width (if facing the cases, so Front/Back covers) is 137.5MM instead if the UGC width of 133.4MM (Or about 1/4 inch)

I have asked if they are able to shave out 4.1MM out of the width.... I'm not sure if they can.... I hope to get the final verdict tonight.
4.) I know this on is really not a big issue, but I'm trying to get them to make the thumb hold conform with the Gameboy case's thumb hold. For some reason they told me they cannot do it due to the structure of this new case, I went back and said I wanted it mainly as a cosmetic. Again, I should have a definite YES/NO answer hopefully tonight.

Oh! And! I decided to go with clear artwork sleeves instead of grainy. (And I'm pretty sure if I wanted, I can order in a low amount of cases with the grainy sleeves...but I'm not there yet

)